Quadrilocale in vendita

Altavilla Vicentina, Via D. Alighieri - Ca' Brusa
Informazioni in agenzia
4 locali 4 locali
125 Mq 125 Mq
2 bagni 2 bagni

Quadrilocale in vendita

Altavilla Vicentina, Via D. Alighieri - Ca' Brusa

Descrizione annuncio

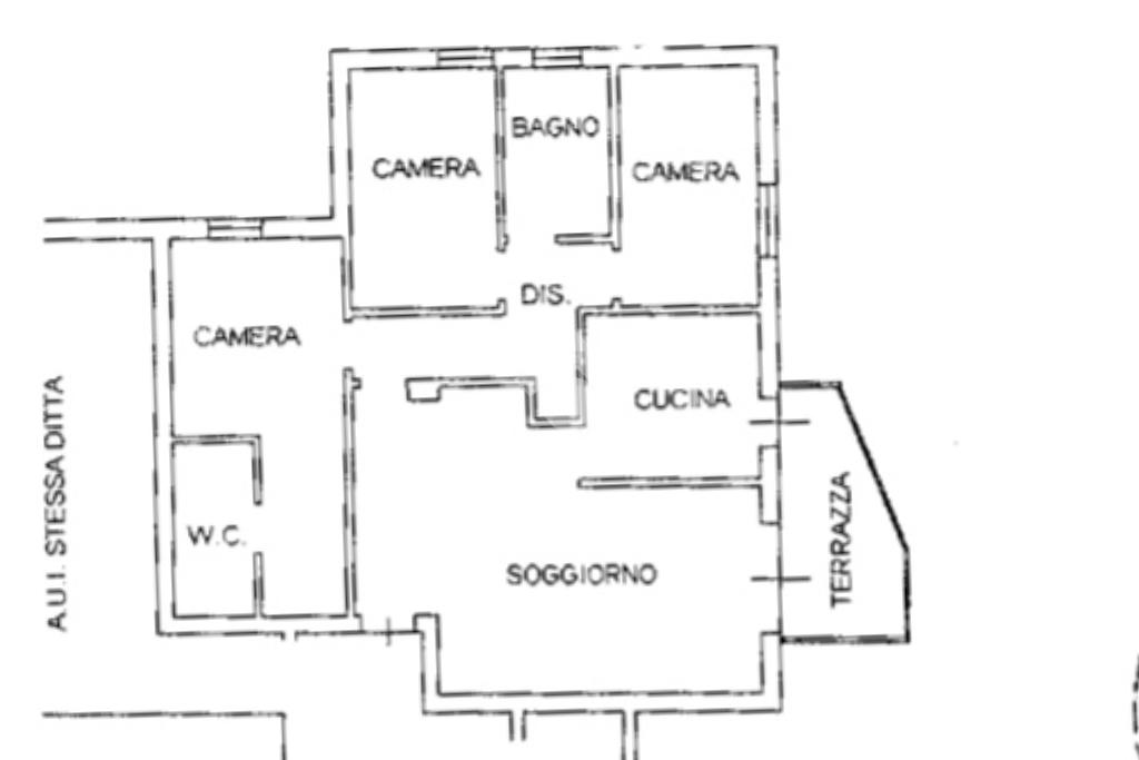
ALTAVILLA VICENTINA (VI) - APPARTAMENTO TRICAMERE

In interno quartiere, in zona residenziale tranquilla e ben abitata, all'interno di un condominio recente del 2007 dal design moderno proponiamo in vendita appartamento tricamere con doppi servizi al 1° piano servito da ascensore con garage doppio.

L'appartamento luminoso si apre nella zona living molto spaziosa direttamnete collegata al terrazzo esterno abitabile. Separatamente una cucina di medie dimensioni, dove si potrebbe pensare di realizzare un bancone alla parete per colazioni e pasti veloci e sfruttare maggiormente lo spazio come piano d'appoggio. Anche la cucina si collega con il terrazzo esterno abitabile.

Il corridoio porta alla zona notte, dove abbiamo una prima camera padronale con bagno privato cieco con doccia, un secondo bagno di servizio, finestrato con vasca e altre due camere singole.

Tutte le camere hanno predisposizione per impianto TV.

Climatizzatore zona giorno, riscalamento autonomo, parquette in tutto l'appartamento.

Appartamento locato fino a Novembre 2026.

Per qualsiasi informazione o se interessati ad una visita, è necessario fissare preventivamente un appuntamento esclusivamente in ufficio.

Per maggioi informazioni contattare l'agenzia Tecnocasa Creazzo

Telefono: 0444.276244

WhatsApp: 328.0064973

E-mail: viho2

Mostra tutto

Nelle vicinanze

Trasporto pubblico Trasporto pubblico
Altavilla - Tavernelle
Altavilla - Tavernelle
2,1 Km
Trasporto pubblico
490 m
Fermata 5
Fermata 5
1,8 Km
Ricariche auto elettriche Ricariche auto elettriche
Unieuro Altavilla Vicentina | EnelX
540 m
CONCESSIONARIO NISSAN Ceccato Automobili Spa
760 m
Scuole Scuole
Scuola Elementare e Materna
500 m
Ic Altavilla Vicentina
1,2 Km
Scuole
1,3 Km
CUOA - Consorzio universitario per gli studi di organizzazione aziendale
1,4 Km
Asilo Nido integrato "I Dolci Monelli"
1,7 Km
Farmacia Farmacia
Farmacia
650 m
Farmacia Giara
1,2 Km
Mattiello
1,5 Km
Mei Spadaro
1,7 Km
Supermercati Supermercati
Lidl
1,2 Km
Supermercati Stella
1,3 Km
LD Market
1,7 Km
Famila
1,9 Km
Famila OLMO
1,9 Km
Negozi Negozi
Uplà Mega Store
410 m
Globo Megastore
640 m
Oviesse
760 m
Negozi
1,6 Km
SiSa Supermercati Stella
1,8 Km
Bar Bar
Bar Al Passaggio
200 m
Bar
430 m
Bar Gardenia
1,4 Km
Bar Perli
1,5 Km
Fiaschetteria Gamberini
1,6 Km
Ristoranti Ristoranti
Fuji Sushi grill
970 m
Trattoria Pizzeria Monterosso
1,1 Km
Dimitri Restaurant
1,1 Km
Agriturismo Fusari
1,4 Km
Pizzeria Happy
1,5 Km
Mostra tutto

Caratteristiche

Rif.:
61123418
Piano:
1 di 3 con ascensore (Piano basso)
Box:
1
Posti auto:
1
Balconi:
1
Terrazzi:
1
Mostra tutto
Prezzo Prezzo
Informazioni in agenzia
Proponi il tuo prezzoProponi il tuo prezzo

Classe Energetica

C
C
C
C
C
C
C
C
C
EP invernale del fabbricato:
EP estiva del fabbricato:
Anno di costruzione:
2008
Riscaldamento:
Autonomo
Tipo impianto:
A pavimento
Tipo alimentazione:
Metano

Ti interessa visionare l'immobile?

Fissa un appuntamento  Fissa un appuntamento

Richiedi informazioni

Clicca su Leggi per aprire l'informativa
* Questi campi sono obbligatori
Affiliato
Studio Piscine Srl
Via Italia, 106 36051 Creazzo (VI)
Via Italia, 106 36051 Creazzo (VI)
Zona: Creazzo-Sovizzo
Mostra su mappa
Affiliato
Studio Piscine Srl
Via Italia, 106 36051 Creazzo (VI)

2026 Tecnocasa Franchising S.p.A. - P. IVA 08365160152 - Via Monte Bianco 60/A 20089 Rozzano (MI). Ogni agenzia ha un proprio titolare ed è autonoma. Privacy policy | Policy utilizzo | Cookie policy