Negozio in affitto

Creazzo, Strada padana verso verona
Informazioni in agenzia
4 locali 4 locali
230 Mq 230 Mq
1 bagno 1 bagno

Negozio in affitto

Creazzo, Strada padana verso verona

Descrizione annuncio

CREAZZO - SS11 STRADA PADANA VERSO VERONA - NEGOZIO IN AFFITTO

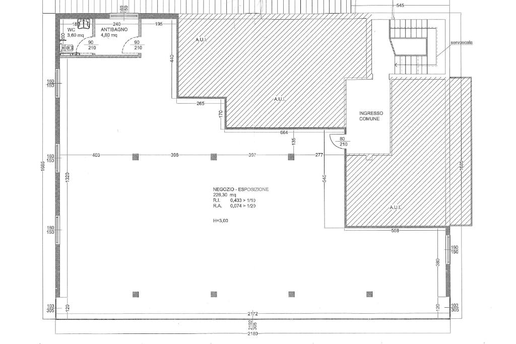
A Creazzo, direttamente sulla SS11 Strada Padana verso Verona, proponiamo in affitto uno spazio commerciale/direzionale di circa 250 mq situato al primo piano, in una posizione di fortissimo passaggio e massima visibilità.

L’immobile si distingue per l’eccezionale fronte strada completamente vetrato, con ben 10 ampie vetrine che garantiscono luce naturale costante e grande impatto visivo, ideale per attività che necessitano immagine e riconoscibilità.

Lo spazio si presenta attualmente al grezzo, con altezza interna di 3 metri, offrendo la possibilità di personalizzare completamente distribuzione interna, impianti e finiture in base alle esigenze della propria attività. L’accesso è indipendente e sono presenti posti auto riservati con accesso diretto dalla statale. È inoltre prevista, se necessaria, l’installazione di un ascensore esterno che aumenterà ulteriormente comfort e accessibilità.

L’immobile è inserito in un contesto commerciale già consolidato, sopra una nota attività di ristorazione e vicino ad altre attività molto frequentate e conosciute in zona, garantendo un flusso costante di potenziali clienti.

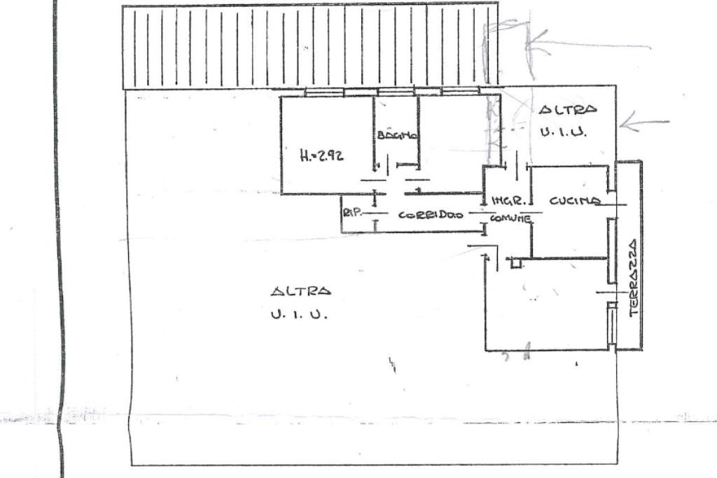
Elemento distintivo è la presenza di un appartamento bicamere arredato collegato internamente, ideale come abitazione, oppure come ufficio direzionale con area ristoro e spogliatoi. L’appartamento è composto da cucina abitabile, soggiorno/studio, due camere e bagno finestrato con doccia.

Disponibile da subito, con lavori interni da completare e personalizzabili.

Soluzione ideale per studi professionali, showroom, sedi aziendali, centri medici o attività che cercano visibilità, parcheggio e una posizione strategica.

Per informazioni: 0444 276244
WhatsApp: 328 0064973

Mostra tutto

Nelle vicinanze

Trasporto pubblico Trasporto pubblico
Altavilla - Tavernelle
Altavilla - Tavernelle
2,6 Km
Trasporto pubblico
360 m
Fermata 5
Fermata 5
1,2 Km
Ricariche auto elettriche Ricariche auto elettriche
CONCESSIONARIO NISSAN Ceccato Automobili Spa
90 m
Unieuro Altavilla Vicentina | EnelX
220 m
Scuole Scuole
Scuole
660 m
Scuola Gigi Ghirotti
1,1 Km
Scuola Elementare e Materna
1,2 Km
Scuola Media Alessandro Manzoni
1,5 Km
San Giovanni Bosco
1,7 Km
Farmacia Farmacia
Farmacia
310 m
Mattiello
800 m
Mei Spadaro
1,1 Km
Farmacia Giara
1,9 Km
Supermercati Supermercati
LD Market
1,1 Km
Famila
1,3 Km
Famila OLMO
1,3 Km
Lidl
1,7 Km
C+C Cash and Carry
1,8 Km
Negozi Negozi
Oviesse
50 m
Globo Megastore
340 m
Uplà Mega Store
380 m
Negozi
1,1 Km
SiSa Supermercati Stella
1,2 Km
Bar Bar
Bar
690 m
Bar Perli
790 m
Bar Al Passaggio
830 m
Fiaschetteria Gamberini
880 m
Tortamivia
1,0 Km
Ristoranti Ristoranti
Pizzeria Happy
800 m
Pizza OK
800 m
Fuji Sushi grill
1,4 Km
Ristorante TOMO
1,5 Km
Tre scalini
1,6 Km
Mostra tutto

Caratteristiche

Rif.:
61169810
Piano:
1 di 1 (Piano alto)
Posti auto:
5
Balconi:
1
Condizionamento:
Autonomo
Riscaldamento:
Autonomo
Mostra tutto
Prezzo Prezzo
Informazioni in agenzia
Spese annue Spese annue
€ 1.000

Classe Energetica

C
C
C
C
C
C
C
C
C
Anno di costruzione:
1960
Riscaldamento:
Autonomo
Tipo impianto:
A radiatori
Tipo alimentazione:
GPL

Ti interessa visionare l'immobile?

Fissa un appuntamento  Fissa un appuntamento

Richiedi informazioni

Clicca su Leggi per aprire l'informativa
* Questi campi sono obbligatori
Affiliato
Studio Piscine Srl
Via Italia, 106 36051 Creazzo (VI)
Via Italia, 106 36051 Creazzo (VI)
Zona: Creazzo-Sovizzo
Mostra su mappa
Affiliato
Studio Piscine Srl
Via Italia, 106 36051 Creazzo (VI)

2026 Tecnocasa Franchising S.p.A. - P. IVA 08365160152 - Via Monte Bianco 60/A 20089 Rozzano (MI). Ogni agenzia ha un proprio titolare ed è autonoma. Privacy policy | Policy utilizzo | Cookie policy